Nybyggt hus färdigt för inflytt i maj!
Ryttinge, Värmdö
Ryttingevägen 5 13941 Värmdö
-
Typ: Småhus
-
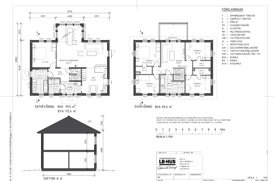
Rum: 7, varav 4 till 5 sovrum
-
Boarea: 188,6 kvm
-
Byggår: 2026
Kommande visningar
Inga visningar planerade. Kontakta mäklaren för mer information.
Bilder
Beskrivning
En härlig familjevilla med både sjö- och havsnära läge i eftertraktade Ryttinge, perfekt beläget på rätt sida stavsnäsvägen ner mot Strömma. Denna välplanerade villa från hustillverkaren LB-hus som är redo för inflytt från maj, erbjuder fyra-fem sovrum och fantastiska sällskapsytor. På bottenplan finner ni utöver huvudentrén en tvättstuga med groventré, öppen planlösning mellan kök och vardagsrum där du även kommer ut på tomten i ett härligt västerläge. Ett kontor/sovrum och till sist ett av husets två badrum. På övervåningen finns 4 sovrum varav tre har walk-in garderober och utöver det en perfekt sällskapsyta/tv-rum och till sist husets andra och större badrum. Tomten är generös till storleken med sol från morgon till kväll i ett lugnt och naturnära läge, fortsätter man ner på vägen kommer ni ner till vattnet och badplats. Tar man en lite längre promenad på en av stigarna hamnar man i Herrvik och den större badplatsen Ålbadet. Kontakta ansvarig mäklare Alex Adeheimer för mer information!
Fakta
Allmän information
- Objektskategori: Småhus
- Objektstyp: Villa
- Storlek: 7 rum, varav 4 till 5 sovrum. Boarea: 188,6 kvm.
- Taxeringsvärde: Taxeringsvärdet är 2 015 000 SEK varav markvärde 2 015 000 SEK.
- Tomt: Totalareal: 2 106 kvm.
-
Fastighetsbeteckning: VÄRMDÖ HERRVIKSTOMTEN 67:36
-
UppdragsID: GN6 ADS
Övriga rättigheter och belastningar
- Planer och bestämmelser:
- Detaljplan för pfo strömma, herrvikstomten, del av herrviksnäs och del av strömma, Detaljplan (Beslutsdatum: 2022-02-02, Registreringsdatum: 2022-08-15, Senast ändrad: 2024-11-20).
- Gemensamhetsanläggning:
- VÄRMDÖ HERRVIKSTOMTEN GA:1.
Byggnad
- Byggår: 2026
- Byggnadssätt: Fönster: 3-glasfönster. Avlopp: Kommunalt avlopp. Vatten: Kommunalt vatten. Taktyp/takbeklädnad: Takpannor. Grund: Platta på mark. Stomme: Trä. Fasadtyp: Träfasad.
- Typ av ventilation: Mekanisk frånluft.
- Uppvärmning: Typ av uppvärmning: Vattenburen elvärme + Frånluftsvärmepump.
Ekonomi
- Pristyp: Utgångspris.
- Inteckningar: Det finns 5 pantbrev om tillsammans 4 066 000 SEK.
- Driftkostnader: Summa driftkostnad: 41 100 SEK/år. Årlig elförbrukning: 13 000 kWh/år. Elkostnad: 22 100 SEK/år. Vatten och avlopp: 12 000 SEK/år. Väg: 3 000 SEK/år. Renhållning: 4 000 SEK/år.
-
Kommentar:
Uppskattade driftskostnader, elkostnaden är beräknad på 1,7kr/kWh. Efter erhållet slutbevis är fastigheten befriad från fastighetsskatt i 15 år enligt nuvarande regler.
-
Boendekostnadskalkyl:
Välkommen att kontakta ansvarig fastighetsmäklare om du vill ha hjälp med att upprätta en boendekostnadskalkyl.
-
Beskrivning av kostnader:
Området
Ryttinge
Ryttinge är ett mycket trevligt och attraktivt område, här finns havet, stränder, badsjöar och stora naturområden in på knuten. Närheten till bussar, förskolor och skola gör detta till ett etablerat permanentområde med villor på stora tomter. Att ta sig med buss in till slussen tar ca 30 minuter, det är linje 432-434 som trafikerar den sträckan. Närmaste busshållplats heter Ryttinge och ligger ett stenkast bort. Värmdö köpcentrum finns bara 7-8 min bort, där finner man det mesta. I närheten finns flera förskolor och skolor, Viks skola (F-6) är den närmaste skolan till vilken det erbjuds skolbuss från Herrvik. Andra skolor i närheten är Hemmesta (F-9) och Ösbyskolan (F-9). Badplats finns i området och det finns även ett par badsjöar inom gångavstånd, Kroksjön och Korsmosjön. Som golfspelare bor man mitt emellan Wermdö Golf & Country Club och Fågelbro Golf och i Mölnvik finns padelbanor och flera gym.